Wettbewerbe // Wohnen / Kultur + Denkmal / Bildung + Sport / Arbeit + Gesundheit

1 / 5

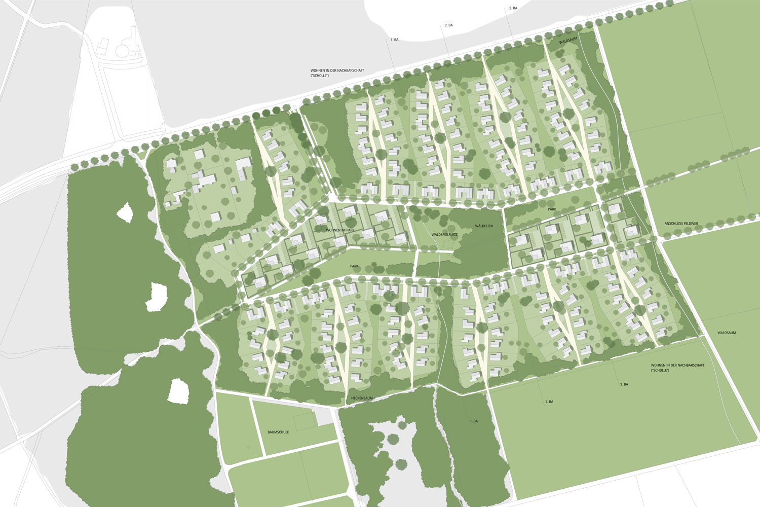
Wohnbebauung Westerholter Straße Gelsenkirchen

Umnutzung des Geländes der ehemaligen Kinderklinik
Auslober: Stadt Gelsenkirchen

3. Preis 2012 ( kein 2. Preis )

Der wertvolle Gehölzbestand auf dem Gelände und das sich östlich daran anschließende Wäldchen bilden als neue „grüne Mitte“ den Kern eines sich linear in Ost-West-Richtung erstreckenden großzügigen Parkbandes. Es bildet als Rückgrat oder Astwerk Stabilität und Tragkraft für die sich nach Norden und Süden hin wie Blätterwerk anhängenden Wohnhöfe.

In die alternierenden Teilflächen des Parkbandes hinein stellen sich villenartig größere Häuser, deren lockere Stellung in Verbindung mit weitläufig öffentlichen Parkflächen auch in Zukunft Durchlässigkeit und freie Sicht für jedermann erlauben. Gen Osten öffnet sich der Park zur freien Landschaft hin und verbindet diese insofern als Erlebnisraum mit dem neuen Quartier – jedoch nicht ausschließlich für dessen Bewohner sondern auch für die Öffentlichkeit. Ein durchgängiger Park- und Wanderweg schafft eine neue Verbindung zwischen dem Waldbestand über das zentrale Parkband zum östlich gelegenen Naturschutzgebiet „Am Quellmühlenbach“.

In Zusammenarbeit mit:
Sarah Gräfer - Architektin, Köln
scape landschaftsarchitekten, Düsseldorf