Wettbewerbe // Wohnen / Kultur + Denkmal / Bildung + Sport / Arbeit + Gesundheit

1 / 4

Neubau einer Dreifachsporthalle für das Pascal-Gymnasium Münster

Nichtoffener Architektenwettbewerb
Ausloberin: Stadt Münster

3. Preis 2018 (kein 2. Preis)

Der Entwurf nimmt die Raumkanten des bestehenden Schulgebäudes auf und fügt sich mit einheitlicher Gebäudehöhe in die vorhandene Bebauung ein.

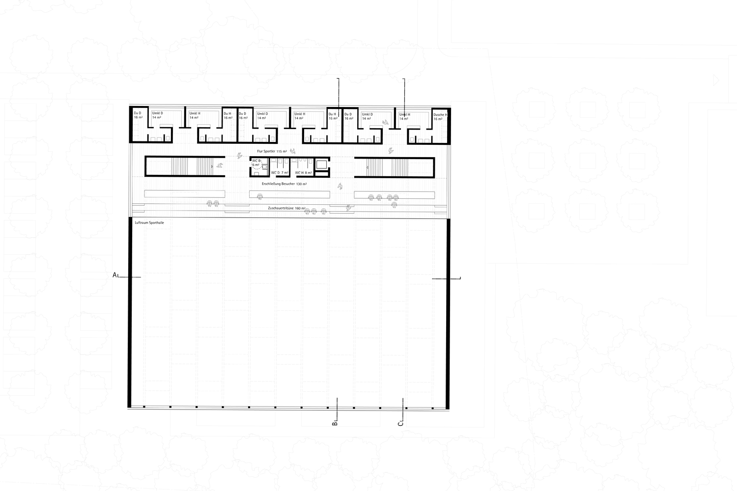
Die für Schul-/Vereinssport bzw. Sportler/Besucher getrennten Zugänge im Norden liegen durch eine Gebäudeauskragung geschützt am neuen Fuß- und Radweg, der weiterführend auch die bestehenden Gebäudeteile erschliesst.

Die innere Erschliessung setzt die Trennung der Nutzerströme fort. Bei der Anordnung der Räume wurde auf natürliche Belichtung und Belüftung wert gelegt.

Der kompakte Baukörper wird zurückhaltend mit kupferfarbenen Blechen verkleidet und nimmt die vorherrschende Fassadenfarbe der Umgebung auf, bleibt aber in der Materialität eigenständig. Im Bereich der großzügigen Fenster werden die Bleche mit Lochung transparent und zugleich vor Einsicht und Blendung schützend hergestellt.